Plot 20, Longcroft at Cubis Bruton

Property image for Plot 20, Longcroft at Cubis Bruton

GET IN TOUCH

DOWNLOAD FLOORPLAN
View Brochure

    REQUEST A CALL BACK ARRANGE A VIEWING

    Property Description

    Personalise your home – Reserve in December to choose your kitchen colour!*

    House 20 is an impressive 4-bedroom home, and one of only two of this type available.

    The exceptional open-plan kitchen/dining/family area offers ample space for entertaining and relaxing, with oversized floor-to-ceiling doors leading onto a private garden. At the front of the house is a separate living room, another bright and spacious place to unwind.

    Upstairs, there is direct access to the fantastic roof terrace, perfect for alfresco dining. Three double bedrooms and one single, which is versatile and could be used as a home office or bedroom. The property overlooks beautifully landscaped green space.

    This home is complete with an en-suite to bedroom 1, ample storage, and a garage.

    Highly energy-efficient, this EPC rated A house includes triple glazing to windows, underfloor heating to ground floor and PV panels with pre-wiring for power storage batteries.

    New-build homes can reduce heating, hot water, and lighting costs by up to 50%, whilst also emitting 65% less carbon each year.^

    House to Sell? Our Assisted Move Plus** scheme allows you to reserve your dream home, even if you’re not on the market yet. In addition, offering a £9,000 boost to use towards moving costs. Speak to us today to find out more.

     

     

    ^Indicative figures, based on HBF “Watt a Save” report published January 2025.

    *Dependant on build stage. Reserve by 31st December for the opportunity to choose your kitchen colour.

    **Assisted Move Terms & Conditions: Subject to availability. On selected homes only. Reservation fee refundable if a buyer is not found for your existing property within the agreed period. Not to be used in conjunction with any other offer.

     

    Features

    • Reserve now and personalise your kitchen colour!*
    • 4 bedrooms
    • Overlooking open green space
    • Open plan kitchen/dining/family area
    • Contemporary kitchen with integrated appliances
    • Access to rear garden from dining area
    • Separate living room
    • 4th bedroom/study
    • En-suite to bedroom 1
    • Utility room
    • Garage
    • EPC rating A

    Price £760,000

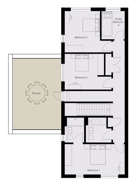
    Floor Plans

    Click to enlarge

    KITCHEN/DINING/FAMILY
    8.0m x 5.0m / 26’ 5’’ x 16’ 8’’

    LIVING
    5.0m x 3.2m / 16’ 8’’ x 10’ 9’’

    Click to enlarge

    BEDROOM 1
    5.7m x 2.8m 18’ 8’’ x 9’ 6’’

    BEDROOM 2
    4.4m x 3.3m 14’ 8’’ x 10’ 11’’

    BEDROOM 3
    4.4m x 3.8m 14’ 8’’ x 12’ 3’’

    BEDROOM 4/STUDY
    2.6m x 2.2m 8’ 10’’ x 7’ 5’’

    Specifications Overview

    Property image for Plot 20, Longcroft at Cubis Bruton
    Property image for Plot 20, Longcroft at Cubis Bruton
    Property image for Plot 20, Longcroft at Cubis Bruton
    Property image for Plot 20, Longcroft at Cubis Bruton
    Property image for Plot 20, Longcroft at Cubis Bruton
    • Energy efficiency rated EPC A
    • Contemporary fitted kitchen with integrated appliances
    • Modern open plan living
    • Mechanical Ventilation Heat Recovery System
    • Solar PV panels
    • Triple glazed windows
    • Minimum of 2 parking spaces per home
    • Contemporary landscaping
    download spec

    Longcroft at Cubis Bruton

    Longcroft at Cubis Bruton is a collection of twenty-eight 3 to 4 bedroom new contemporary homes.

    Bruton Primary School

    Local primary school a short distance from Cubis Bruton.

    King's Bruton School

    King’s Bruton is an independent, HMC, fully co-educational, secondary, boarding & day school, for 13-18-year-olds.

    Bruton School for Girls

    A day and boarding school for girls aged 3 -18, near to Cubis Bruton.

    At The Chapel

    At the Chapel is a restaurant, bedrooms, bakery, terrace and clubroom, housed within a beautiful Grade II Listed, 19th-century remodelling of an 18th-century house, a former Congregational chapel.

    Hauser & Wirth

    Hauser & Wirth Somerset is a pioneering world-class gallery and multi-purpose arts centre which acts as a destination for experiencing art, architecture, and the remarkable Somerset landscape through new and innovative exhibitions of contemporary art.

    Bruton Station

    Local railway station with regular trains to Bath, Bristol and London.

    Castle Cary

    Castle Cary railway station is on the Reading to Taunton line and the Bristol to Weymouth line with direct trains to London Paddington and Bristol Temple Meads.

    Caro

    CARO is a lifestyle shop offering objects for life and home sourced from around the globe.

    Matt's Kitchen

    Matt’s Kitchen offers a simple menu of a single dish-of-the-day along with a selection of starters and desserts.

    Bruton Wholefoods

    Friendly independent co-op with a wide range of whole foods, organic food, local produce, ethical and ‘free-from’ products.